Новый Дом из Лафета и Баня — на берегу — Звизжи
В некоторой деревне, в некотором Национальном парке, в продаже три объекта недвижимости:
- Первый земельный участок площадью 55 соток
- Второй Дом Баня из Профилированного бруса, площадью 113 м
- Третий Новый дом из соснового Лафета, площадью 212 м
Смотрите полный видео обзор
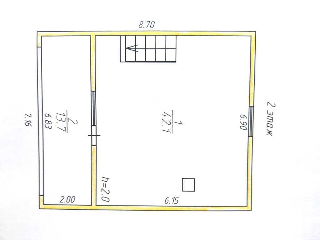
Фото — Дом Баня из Профилированного бруса, площадью 113 м








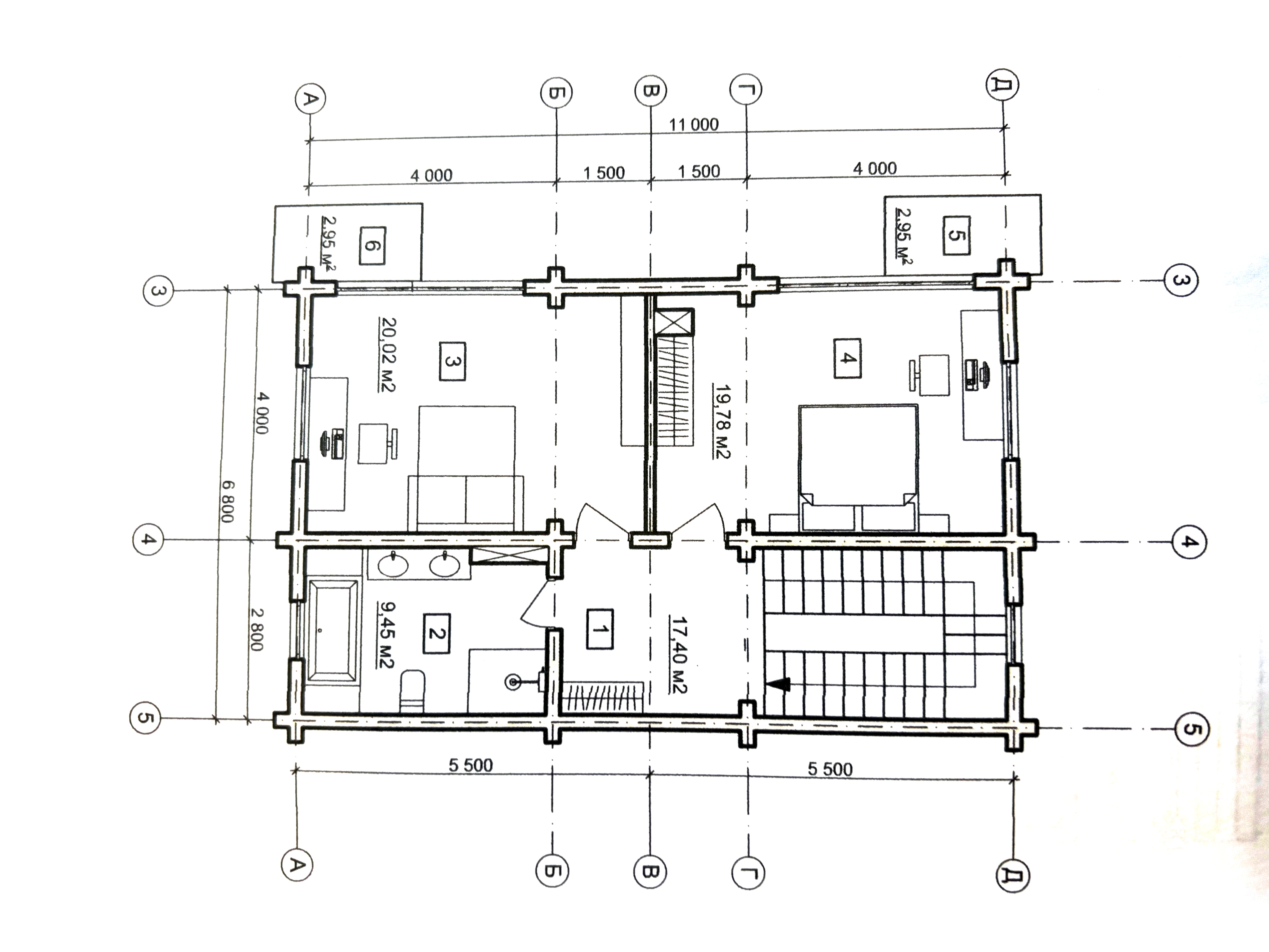
Фото — Новый дом из соснового Лафета, площадью 212 м




План — земельный участок площадью 55 соток




Деревня Звизжи это небольшая тихая деревушка, расположена на высоком, не подтопляемом берегу реки Угра, окружена сосновыми лесами, территория Национального парка Угра. В деревне есть небольшой сельский магазинчик, почтовое отделение пункт выдачи заказов, сельская школа, и несколько АРТ объектов культуры Николо-Ленивца.
Дом из соснового Лафета и дом Баня на одном большом участке
1. Дом Баня из Профилированного бруса, 2009 года постройки, площадью 113 м, 1 этажа 60 кв.м., мансардный этаж с лоджией 53 кв.м: Стены Профилированный брус, Фундамент ленточный фундамент, Подвал полноценный сухой подвал. Полная отделка, состояние идеальное. Баня, камин, горячее водоснабжение и отопление котел BAXI с дистанционным управлением. Интерьер: полностью мебелирован, полноценная кухня, вся бытовая техника. Для детей дополнительное оборудование для безопасности.
2. Новый дом 2023 года из соснового Лафета, площадью 212 м, 1 этаж 198 м, 2 этаж 75 м: Стены Срублен и собран из северного соснового лафета (диаметр бревен 30 см). Стены отшлифованы, покрыты маслом BIOFA, выполнены внешние оконные проемы. Фундамент монолитная плита (150 мм.), ростверке и забивных сваях (Ж/б С30-20, 150х150х3000 мм 53 шт.). Выполнены закладки инженерных сетей. Технический этаж. Интерьер полностью подведен под отделку, бревно прошло усадку. Готов к внутренней отделке. Крыша пирог кровли сделан максимально качественно с использованием мягкой кровли Katepal. Вся проектная документация!.
Коммуникации и удобства — Водонагреватель, Водопровод центральный, Канализация — септик, Магистральный газ, Отопление Газовое, Отопление камин, Отопление теплый пол Электричество 380. Общественный транспорт — Остановка автобуса, Такси Парковка — Парковочное место Подъезд — Асфальт Связь — WiFi, Возможно подключение проводного высокоскоростного интернета, Мегафон, МТС, Теле2 Участок — Баня, Беседка, Детская площадка, Забор металлпрофиль, Задний двор, Навес, Передний двор, Плодовый сад, Сосны, Березы, ХозБлок
Цена 22 000 000 рублей
Телефон / Ватсап 8-920-885-88-88, или 8-919-032-43-56